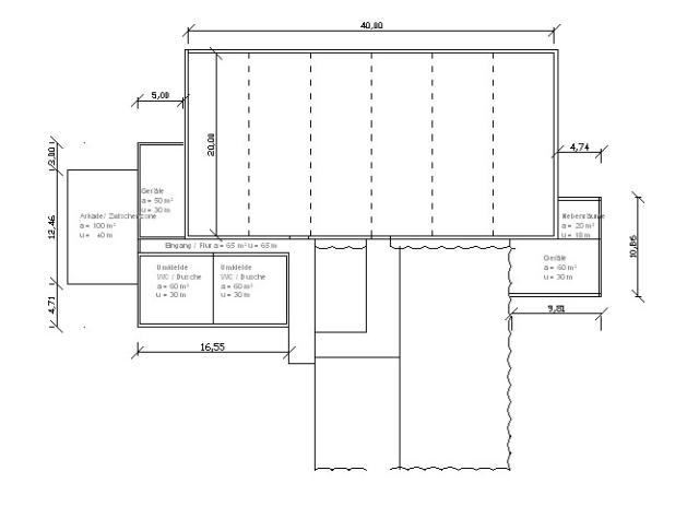
Projektbeschreibung:
Turnhallenneubau in Schönwalde Glien

Es handelt sich hierbei um einen Wettbewerbsbeitrag

Projektbeschreibung:

Turnhallenneubau in Schönwalde Glien

Es handelt sich hierbei um einen Wettbewerbsbeitrag